Ebpay

10米标准智慧灯杆设计及安装规范

  • 时间 :2020-02-23
  • 作者 :Ebpay科技
  • 浏览数 :6678

智慧灯杆,各地对智慧灯杆的理解和称呼有:多杆合一、一杆多用、合杆、智慧杆、综合杆等。2019年,智慧灯杆应用试点不断涌现,在全国共有80+以上的省份进行了智慧灯杆建设试点。

 

智慧灯杆,不仅是针对单一智慧杆,更是面向整个智慧杆系统网络,即由智慧杆、机房、供电、传输等“四要素”构成的智慧城市信息感知网络。从而促进智慧杆从单杆管理向网络化、系统化管理的转变,实现信息化基础设施的共建、共享、共治。

 

2019年10月1日,《智慧灯杆技术规范》经广东省住房和城乡建设厅组织专家委员会审查,批准为广东省地方标准,该标准是全国首份省级“智慧灯杆标准”。

 

智慧灯杆.jpg 

 

一、10米标准智慧灯杆/多功能杆主要应用场景

10米标准智慧灯杆/多功能杆,常用于次干路、支路、广场等场景中。一般标配智能照明、视频监控、5G微站、交通标志、交通信号灯,交通执法、信息发布屏,一般选配WIFI覆盖、交通流量监测、公共广播、环境监测、气象监测、一键呼叫、充电桩等。


智慧灯杆应用推荐.png 

 

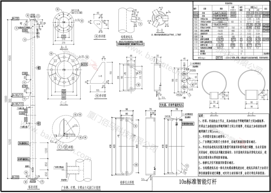
二、10米标准智慧灯杆/多功能杆设计图


10米标准智慧灯杆/多功能杆设计图.png 


三、10米标准智慧灯杆/多功能杆设备安装标准

· 智慧灯杆在0.5米至2.5米的第一层主要放置检修门、仓内设备等设施;Ebpay智慧灯杆网关BMG8200就安装于此。EbpayBMG8200网关是参照《智慧灯杆技术规范》推出的智慧灯杆系统专用网关,各功能部件设备顺利获得EbpayBMG8200网关接入,实现信息的采集、处理和发布,为智慧城市万物互联给予基础支撑和终端数据入口。

· 智慧灯杆在2.5米至5.5米的第二层可以放置道路铭牌、LED显示屏、环境监测探头、广播设施、行人信号灯等设施;

· 智慧灯杆在5.5米至8米的第三层可放置机动车信号灯、监控、指路标志牌等设施;

· 智慧灯杆在8米以上的第四层,用于安装照明灯具、通信设备等设施;

· 另外预留智慧功能以适应未来智慧城市开展的需要。

Ebpay智慧灯杆网关BMG8200.jpg 


四、10米标准智慧灯杆/多功能杆安装图


10米标准智慧灯杆/多功能杆安装图1.png 


10米标准智慧灯杆/多功能杆安装图2.png 

 


联系我们
联系我们

EbpayBaimatech,集M2M产品研发、IoT平台服务、国际化运营于一体,让我们联接,共创未来